Sobha One Residence Floor Plan offers modern and creative 1, 2, 3, and 4 BHK ultra-luxury apartments across 18 high-rise towers with 3B+G+53 floors. The project offers 5,406 premium homes with unit sizes ranging from 740 to 2,500 sq. ft., designed for modern urban lifestyles.
A floor plan is a clear diagram that shows the layout of a housing unit when viewed from above. It will include details of room sizes and will be created in 2D and 3D formats to give a clear glimpse of the future home. At Sobha One Residences, floor plan PDFs are available for every unit type so that buyers can compare sizes and the position of rooms easily.
Sobha One Residences offers different floor plans of diverse sizes. Within each BHK type, there are multiple variants with different placements of rooms.
Sobha One Residences Floor Plan includes the following 4 configurations mainly:
Sobha One Residences 1 BHK Apartments floor plan (740 sq ft) – Compact layouts that are perfect for bachelors, single persons, and also for couples.
Sobha One Residences 2 BHK Apartments floor plan (1,070 to 1,200 sq. ft) - Spacious layouts that are perfect for nuclear families and small families with kids.
Sobha One Residences 3 BHK Apartments floor plan (1,525 to 1,825 sq. ft) – Perfect for joint families with extra spacious rooms and more privacy.
Sobha One Residences 4 BHK Apartments floor plan (2,100 to 2,500 sq. ft) – Premium housing units with luxury living spaces ideal for extended families.
Sobha One Residences has apartments in various sizes and dimensions as mentioned below,
Unit Type
Size
Availability
1 BHK
740 sq ft
EOI / Enquiry Open
2 BHK
1,070 sq ft to 1,200 sq ft
EOI / Enquiry Open
3 BHK Lux
1,525 sq ft
EOI / Enquiry Open
3 BHK Grande (2 car park)
1,825 sq ft
EOI / Enquiry Open
4 BHK Lux (2 car park)
2,100 sq ft
EOI / Enquiry Open
4 BHK Grande (2 car park)
2,500 sq ft
EOI / Enquiry Open
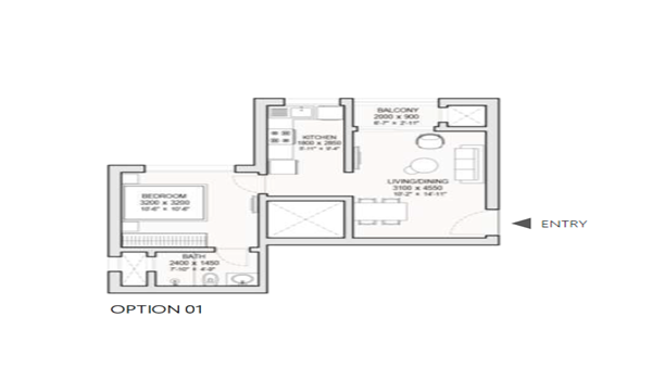
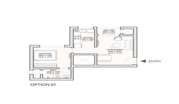
Sobha One Residences 1 BHK Apartment Floor Plan provides a carefully planned area of 740 sq. ft.
The layout of a 1-bedroom flat has
1 bathroom
Living and dining area
Kitchen
A foyer
1 bedroom
Balcony
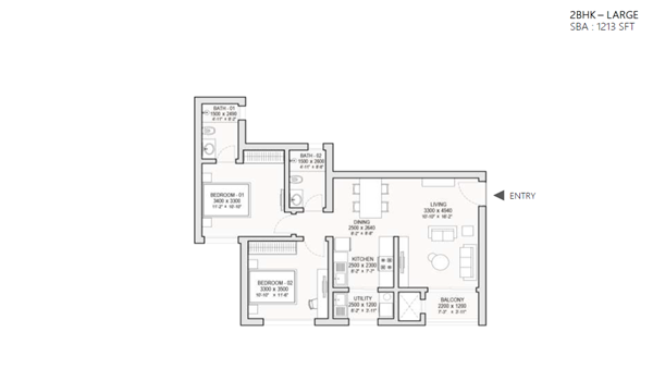
The 2 BHK floor plan provides a carefully planned living space from 1,070 to 1,200 sq. ft. In 2 BHKs, the living room opens out to the balcony facing amenities. The bedrooms are grouped on one side to give a private sleeping space with privacy that is away from the entrance.
The layout of a 2-bedroom flat has
2 bathrooms
Living and dining area
Kitchen
Maid’s room
2 balconies
A foyer
2 bedrooms
The 3 BHK floor plan offers spacious areas in size from 1,525 to 1,825 sq. ft. The extra room can also be used as a home office, a workout room, or a guest room. The layout of a 3-bedroom flat has
Living and dining area
Kitchen with utility space
2 balconies
A foyer
3 bedrooms
3 bathrooms
A maid’s room or study room
There are 2 variants of 3 BHK as follows,
3 BHK Lux - 1,525 sq ft
3 BHK Grande (2 car parking) - 1,825 sq ft
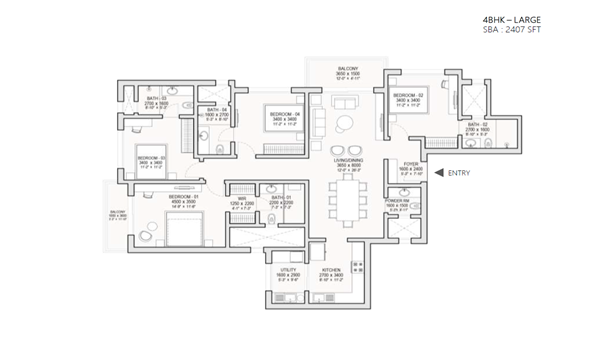
The 4 BHK floor plan is the premium and spacious layout that is crafted for buyers seeking luxury with extra space and extended families. The size range is from 2,100 to 2,500 sq. ft.
The layout of a 4-bedroom flat has
4 bathrooms
Large living area
Kitchen with utility space
3 balconies
A maid’s room or study room
A foyer
4 bedrooms
There are 2 variants of 4BHK as follows,
4 BHK Lux (2 car park) - 2,100 sq ft
4 BHK Grande (2 car park) - 2,500 sq ft
Floor plans are aligned to Vaastu to offer positive living spaces
All the units are planned with zero dead corners
All units will get sufficient natural light and ventilation
1, 2, 3 and 4 BHK layouts developed in a varying size range to suit every buyer
No 2 housing units will face each other for good privacy
All apartments’ balconies will face outside green spaces for a serene look
Sobha One Residences Floor Plan Reviews are added so that new buyers can select their desired units based on those suggestions. The Sobha One Residences Floor Plan rating is 4.0/5, from real estate experts and early buyers.
FAQS
There are 1, 2, 3, and 4BHK units in various sizes.
No, the floor plans cannot be changed, as the project is based on a specific theme.
There are 5406 ultra-luxury apartments.
The tower is built using a cross-ventilation technique so that all units will get better ventilation and natural light.