Sobha One World Logo
  • Home
  • Location
  • Master Plan
  • Floor Plan
  • Price
  • Amenities
  • Gallery
  • Specifications
  • Contact
  • Brochure

Floor Plan

  1. Home
  2. Floor Plans

Sobha One World Floor Plan


Sobha One World offers a wide range of apartment floor plans with smart and modern designs. The project includes 1, 2, 3, and 4 BHK apartments (Luxe and Grande variants), with sizes ranging from 734 sq. ft. to 2,415 sq. ft. There are 3,484 apartments spread across 14 residential towers in the launched One Residences (6 RERA phases). Each tower is planned with 3 basement floors, ground floor + 1st floor parking, and 45 or 46 typical residential floors above, providing spacious and comfortable homes for urban families.

A floor plan is a visual drawing that shows how an apartment is arranged. It helps buyers understand the design of the home by clearly showing the size and placement of bedrooms, bathrooms, balconies, kitchen, utility area, living room, dining space, and foyer. Floor plans make it easier to imagine daily life inside the apartment.

The floor plans at Sobha One World are designed by experienced professionals. They focus on comfort, smooth movement inside the home, and smart use of space. These layouts are suitable for individuals, small families, and large families, meeting different lifestyle needs.

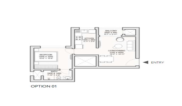
Featured Image of Sobha One World 1 BHK Floor Plan Enquire Now

1 BHK Floor Plan


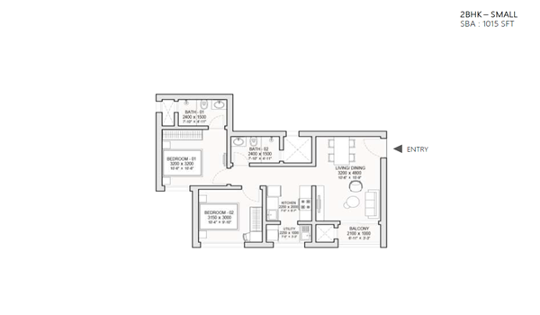
Featured Image of Sobha One World 2 BHK Small Floor Plan Enquire Now

2 BHK Small Floor Plan


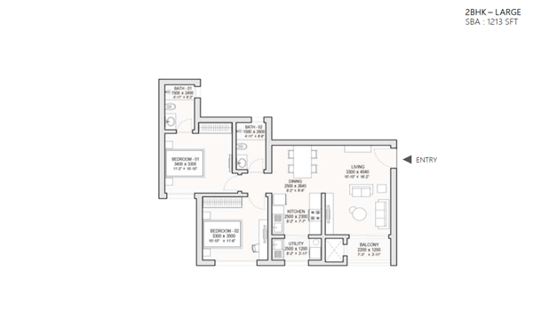
Featured Image of Sobha One World 2 BHK Large Floor Plan Enquire Now

2 BHK Large Floor Plan


Featured Image of Sobha One World 3 BHK Floor Plan Enquire Now

3 BHK Small Floor Plan


Featured Image of Sobha One World 3 BHK Floor Plan Enquire Now

3 BHK Large Floor Plan


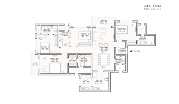
Featured Image of Sobha One World 4 BHK Floor Plan Enquire Now

4 BHK Small Floor Plan


Featured Image of Sobha One World 4 BHK Floor Plan Enquire Now

4 BHK Large Floor Plan


Types of Apartment Floor Plans

Sobha One World offers lot of apartment floor plan options to fulfil different family sizes and preferences. Buyers can choose from 1 BHK, 2 BHK, 3, and 4 BHK flats, each designed with attention to space and comfort.

All apartments are Vaastu-compliant. The main entrance doors face North or East, and the kitchens are placed in the Southeast or Northwest direction, as recommended by Vaastu principles.

Sobha One World is currently in the pre-launch stage. Apartments are open for EOI (Expression of Interest) and enquiries. The available apartment sizes are listed below.

Floor Plan type of Sobha One World :

Type BHK Variant Indicative Wing SBA (sq.ft.) Carpet Area (sq.ft.) Availability
Type A4 BHK GrandeWing 12,415.771,488.02EOI / Enquiry Open
Type C34 BHK LuxeWing 82,096.271,275.75EOI / Enquiry Open
Type F13 BHK GrandeWing 21,820.381,102.02EOI / Enquiry Open
Type J83 BHK LuxeWing 91,510.70960.04EOI / Enquiry Open
Type K32 BHK GrandeWing 131,204.92743.04EOI / Enquiry Open
Type L52 BHK LuxeWing 101,063.23648.32EOI / Enquiry Open
Type M51 BHKWing 14734.05432.28EOI / Enquiry Open

The Type code (e.g., Type A, Type J8) is the reference used inside the official Sobha One World floor-plan PDF. Buyers comparing layouts can use this code to locate the specific drawing inside the brochure. The Indicative Wing column shows which wing is documented for that Type variant in the brochure — the same Type may exist in other wings of the same phase too.

The 1 BHK apartments are compact as well as thoughtfully designed. These homes are ideal for working professionals and investors who prefer easy-to-maintain living spaces. The apartment size is 734 sq. ft., offering a comfortable and practical layout.

The 1 BHK floor plan includes:

  • A foyer
  • 1 bedroom
  • 1 bathroom
  • Living and dining area
  • Kitchen
  • Balcony

Key design features (from the official brochure):

  • Column-free living and dining area extending to a balcony with panoramic views
  • Open kitchen with floor-to-ceiling tiling and a functional work triad
  • Large windows for abundant natural light & ventilation
  • Outdoor AC units seamlessly integrated within designated shafts
  • Bedroom includes provisions for wardrobe, study desk & TV point

Indicative room dimensions (brochure Type M5, Wing 14):

  • Living & Dining: 5100 × 3400 mm (16'-9" × 11'-2")
  • Kitchen: 2825 × 2450 mm (9'-3" × 8'-0")
  • Bedroom: 3400 × 3400 mm (11'-2" × 11'-2")
  • Bathroom: 1500 × 2400 mm (4'-11" × 7'-10")
  • Balcony: 1150 × 2300 mm (3'-9" × 7'-7")

The 2 BHK apartments offer a good balance of comfort and privacy. With sizes ranging between 1,063 sq. ft. to 1,204 sq. ft., these homes are suitable for small families.

The 2 BHK units are available in two layouts:

  • 2 BHK Luxe: 1,063 sq. ft.
  • 2 BHK Grande: 1,204 sq. ft.

The 2 BHK floor plan includes:

  • A foyer
  • 2 bedrooms
  • 2 bathrooms
  • Living and dining area
  • Kitchen
  • Maid’s room
  • 2 balconies

Key design features (from the official brochure):

  • Column-free living and dining area extending to a balcony with panoramic views
  • Open kitchen with floor-to-ceiling tiling and a functional work triad
  • Master bedroom with wide sliding doors opening to a private balcony
  • Well-ventilated utility area with space for washing machine & dishwasher
  • Grand foyer with generous storage space
  • All bedrooms include provisions for wardrobes, study desks, & TV points
  • Outdoor AC units seamlessly integrated within designated shafts

Indicative room dimensions (brochure Type K3, 2 BHK Grande, Wing 13):

  • Living & Dining: 5200 × 3500 mm (17'-1" × 11'-6")
  • Master Bedroom: 3550 × 3400 mm (11'-8" × 11'-2")
  • Bedroom 2: 3500 × 3400 mm (11'-6" × 11'-2")
  • Kitchen: 2700 × 2250 mm (8'-10" × 7'-5")
  • Utility: 1900 × 1600 mm (6'-3" × 5'-3")
  • Balcony: 1150 × 2700 mm (3'-9" × 8'-10")

The 3 BHK apartments are spacious and well planned to provide better privacy and open living spaces. Apartment sizes range from 1,510 sq. ft. to 1,838 sq. ft., making them ideal for growing families.

The 3 BHK homes are offered in two layouts:

  • 3 BHK Luxe: 1,510 sq. ft.
  • 3 BHK Grande: 1,735 – 1,838 sq. ft.

The 3 BHK floor plan includes:

  • A foyer
  • 3 bedrooms
  • 3 bathrooms
  • Living and dining area
  • Kitchen with utility space
  • 2 balconies
  • A maid’s room or study room

Key design features (from the official brochure):

  • Column-free living and dining area extending to a balcony with panoramic views
  • Grand foyer with generous storage space
  • Open kitchen with floor-to-ceiling tiling and a functional work triad
  • Master bedroom with wide sliding doors opening to a private balcony
  • Walk-in closet provision in the master bedroom (3 BHK Grande)
  • Well-ventilated utility area with space for washing machine & dishwasher
  • Guest rooms positioned near the entrance, offering maximum privacy
  • Large windows for abundant natural light & ventilation
  • All bedrooms include provisions for wardrobes, study desks, & TV points
  • Outdoor AC units seamlessly integrated within designated shafts

Indicative room dimensions (brochure Type F1, 3 BHK Grande, Wing 2):

  • Living & Dining: 7200 × 3500 mm (23'-7" × 11'-6")
  • Master Bedroom: 4000 × 3450 mm (13'-1" × 11'-4")
  • Bedroom 2: 3400 × 3400 mm (11'-2" × 11'-2")
  • Bedroom 3: 3400 × 3400 mm (11'-2" × 11'-2")
  • Kitchen: 2500 × 3500 mm (8'-2" × 11'-6")
  • Utility: 2350 × 1600 mm (7'-9" × 5'-3")
  • Foyer: 2000 × 1800 mm (6'-7" × 5'-11")

The 4 BHK apartments are designed for large families and luxury living. These homes range in size from 2,096 sq. ft. to 2,415 sq. ft., offering spacious interiors and premium comfort.

The 4 BHK units are offered in two sizes:

  • 4 BHK Luxe: 2,096 sq. ft.
  • 4 BHK Grande: 2,415 sq. ft.

Each 4 BHK apartment includes:

  • A foyer
  • 4 bedrooms
  • 4 bathrooms
  • Large living area
  • Kitchen with utility space
  • 3 balconies
  • A maid’s room or study room

Key design features (from the official brochure):

  • Column-free living and dining area extending to a balcony with panoramic views
  • Grand foyer with generous storage space
  • Conveniently positioned powder room for visitors' ease (4 BHK Grande)
  • Open kitchen with floor-to-ceiling tiling and a functional work triad
  • Master bedroom with provision for walk-in closet and a private balcony with a wide sliding door
  • Well-ventilated utility area with space for washing machine & dishwasher
  • Guest rooms positioned near the entrance, offering maximum privacy
  • Large windows for abundant natural light & ventilation
  • All bedrooms include provisions for wardrobes, study desks, & TV points
  • Outdoor AC units seamlessly integrated within designated shafts

Indicative room dimensions (brochure Type A, 4 BHK Grande, Wing 1):

  • Living & Dining: 7400 × 3700 mm (24'-3" × 12'-2")
  • Master Bedroom: 3500 × 4100 mm (11'-6" × 13'-5")
  • Bedroom 2: 3900 × 3400 mm (12'-10" × 11'-2")
  • Bedroom 3: 3400 × 3900 mm (11'-2" × 12'-10")
  • Bedroom 4: 3800 × 3400 mm (12'-6" × 11'-2")
  • Walk-in Closet: 1600 × 1800 mm (5'-3" × 5'-11")
  • Kitchen: 3500 × 2800 mm (11'-6" × 9'-2")
  • Utility: 2925 × 1600 mm (9'-7" × 5'-3")
  • Powder Room: 2200 × 1400 mm (7'-3" × 4'-7")
  • Foyer: 1800 × 2200 mm (5'-11" × 7'-3")

The Sobha One World Floor Plan PDF provides clear 2D layouts of all apartment types. It offers a top view of each unit and helps buyers understand room sizes, layout flow, and space usage. The floor plan PDF can be downloaded from the official website.

Apartment prices vary depending on the size and layout. The starting price range is as follows:

  • 1 BHK: From Rs. 1.09 Crores onwards
  • 2 BHK Luxe: From Rs. 1.5 Crores onwards
  • 2 BHK Grande: From Rs. 1.73 Crores onwards
  • 3 BHK Luxe: From Rs. 2.25 Crores onwards
  • 3 BHK Grande: From Rs. 2.7 Crores onwards
  • 4 BHK Luxe: From Rs. 3.1 Crores onwards
  • 4 BHK Grande: From Rs. 3.6 Crores onwards

The 3,484 apartments in the launched One Residences are distributed across the 6 RERA-registered sub-phases as follows. Each phase has a distinct unit mix designed to suit different family sizes.

Phase (Wings) 1 BHK 2 BHK 3 BHK Luxe 3 BHK Grande 4 BHK Luxe 4 BHK Grande Total
Phase 1 (W1, W2)———362—180542
Phase 2 (W3, W4)90174 (Luxe)266———530
Phase 3 (W5, W6)———44288—530
Phase 4 (W7, W8)———35288—440
Phase 5 (W9, W10, W11)89270362———721
Phase 6 (W12, W13, W14)89270362———721
Project Total2687149901,1561761803,484

Phases 1, 3, and 4 are weighted towards larger 3 BHK Grande and 4 BHK homes. Phases 2, 5, and 6 deliver the affordable mix of 1 BHK and 2 BHK Luxe units alongside the 3 BHK Luxe variants. Buyers can use this table to identify which phase is currently inventory-rich for their preferred BHK type.

The floor plan photos have clear HD images of 1, 2, 3, & 4 BHK apartments, helping buyers understand room sizes and layout clearly. All balconies face exterior views, and the towers are planned to avoid direct overlooking between apartments.

AC outdoor units are placed in hidden areas to keep the building exterior neat. The building design allows good airflow and reduces heat, ensuring all living areas, kitchens, and bedrooms are well ventilated. Wide corridors and smart layouts improve daily comfort. Sobha One World offers homes that suit different lifestyle needs.

FAQS


Sobha One World offers 1, 2, 3, and 4 BHK apartments. These homes are designed with modern layouts suitable for individuals, small families, and large families.

The apartment sizes range from 734 sq. ft. to 2,415 sq. ft., allowing buyers to choose based on their space requirements and budget.

Yes, all apartment floor plans are Vaastu-compliant. Main doors face North or East, and kitchens are placed in the Southeast or Northwest as per Vaastu guidelines.

Buyers can refer to the Sobha One World Floor Plan PDF, which provides clear 2D layouts showing room sizes, layout flow, and space usage.

Yes, the floor plans are designed to provide good airflow, natural light, and privacy. Balconies face exterior views, towers avoid direct overlooking, and AC outdoor units are placed in hidden areas for a neat building appearance.

Featured Image of 2 BHK Floor Plan
Featured Image of Kitchen Garden 101: Utilizing Your Balcony for Sustainable Living at Sobha One World
Featured Image of Smart Space-Saving Furniture Solutions for Modern 2 BHK Homes

Disclaimer : The content is for information purposes only and does not constitute an offer to avail of any service. Prices mentioned are subject to change without notice and properties mentioned are subject to availability. Images for representation purposes only. This is the official website of authorized marketing partner. We may share data with RERA registered brokers/companies for further processing. We may also send updates to the mobile number/email id registered with us.

As an authorized marketing partner, we provide verified project updates and insights. By submitting your details, you express interest and consent to receive communication via call, SMS, or email. To provide seamless service, your information may be shared with our RERA-registered associates for expert assistance.

© 2026 All rights reserved

Privacy Policy, Disclaimer

Enquire Now
Title